Immobiliare Desidera in Castelletto Sopra Ticino (NO) propone in vendita spazioso trilocale al 2° piano senza ascensore di 106mq commerciali e box auto doppio in lunghezza di 24mq commerciali
Contattaci per visionare l’immobile
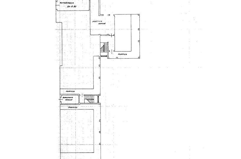
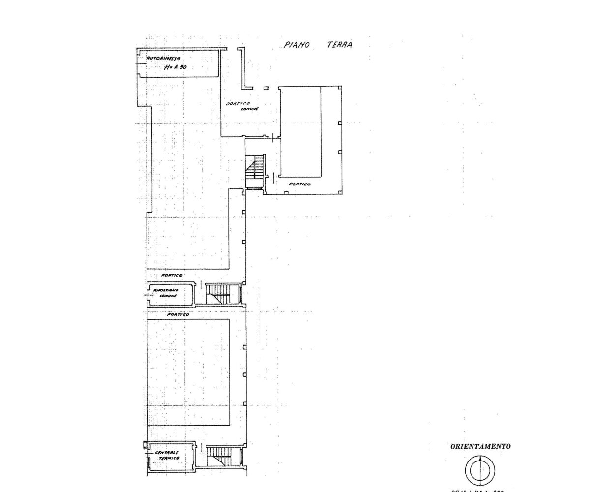
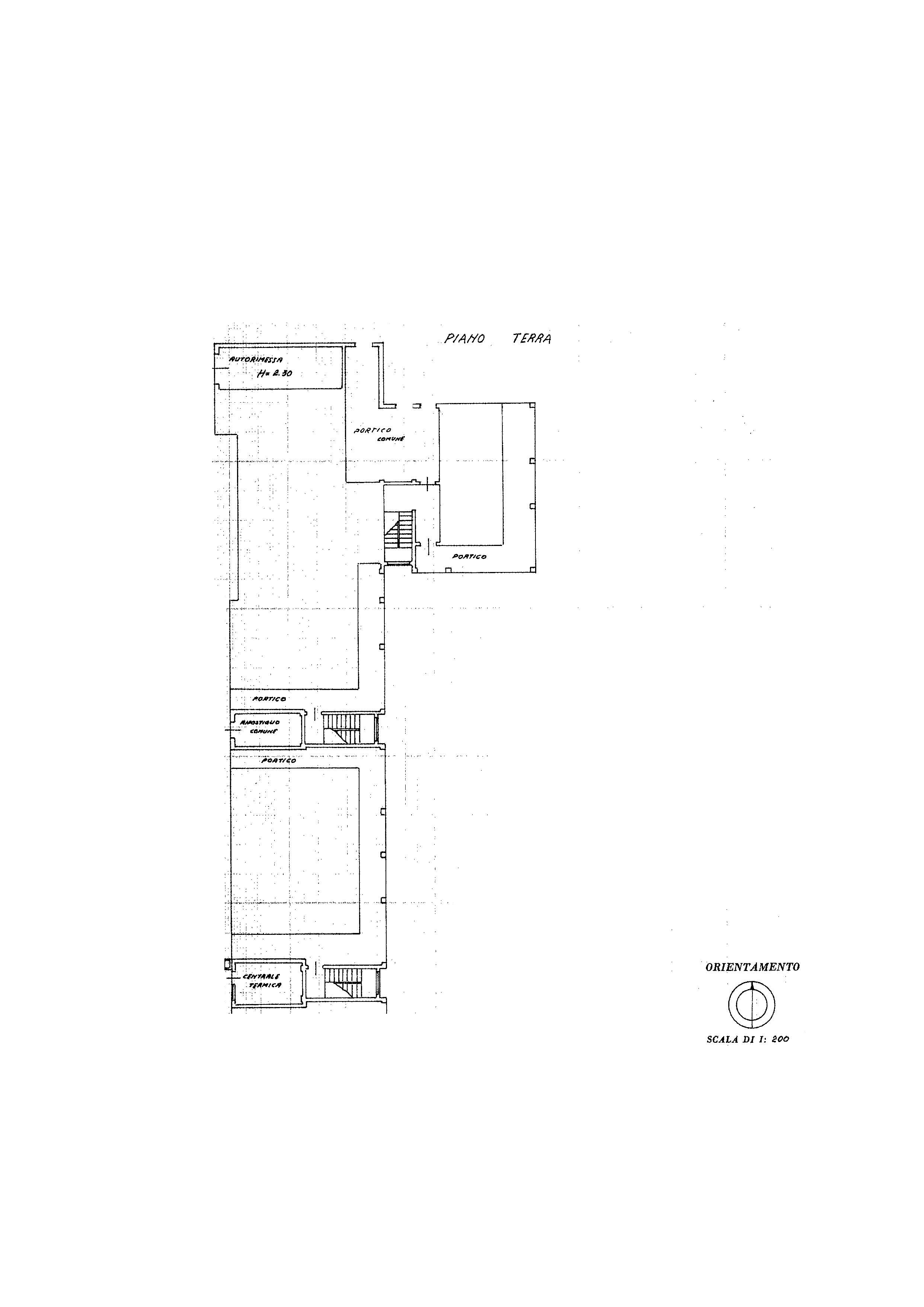
Ubicato in zona residenziale in condominio con spazi verdi comuni l’appartamento è così composto: ingresso, soggiorno con balcone, cucina abitabile con balcone, bagno con vasca ed ulteriore bagno con doccia e 2 camere da letto matrimoniali entrambe con accesso al balcone. Box auto doppio in lunghezza. Riscaldamento centralizzato.
Contattaci per visionare l’immobile
Indice di Prestazione Energetica: G – 338,80 kWh/m2a
Per info: Agenzia Immobiliare Desidera
Castelletto Sopra Ticino: 0331.973562
Sesto Calende: 0331.913264
Mob.: 348.8091809
Web: desidera.com
E-mail: info@desidera.com
Per una visita guidata/virtual tour ed altre informazioni visita l’immobile sul nostro sito internet
Property Features
- Canna Fumaria
- Doppi Servizi
Allegati
Cosa nelle vicinanze?
Ristoranti
General Error from Yelp Fusion API
Curl failed with error #403: 256
Coffee Shops
General Error from Yelp Fusion API
Curl failed with error #403: 256
Drogherie
General Error from Yelp Fusion API
Curl failed with error #403: 256
Formazione scolastica
General Error from Yelp Fusion API
Curl failed with error #403: 256
Clinica Veterinaria
General Error from Yelp Fusion API
Curl failed with error #403: 256
Parco
General Error from Yelp Fusion API
Curl failed with error #403: 256
Ospedali
General Error from Yelp Fusion API
Curl failed with error #403: 256


