Immobiliare Desidera in Borgomanero (NO) propone in vendita trilocale da ristrutturare di 71mq commerciali in zona centrale
Contattaci per visionare l’immobile
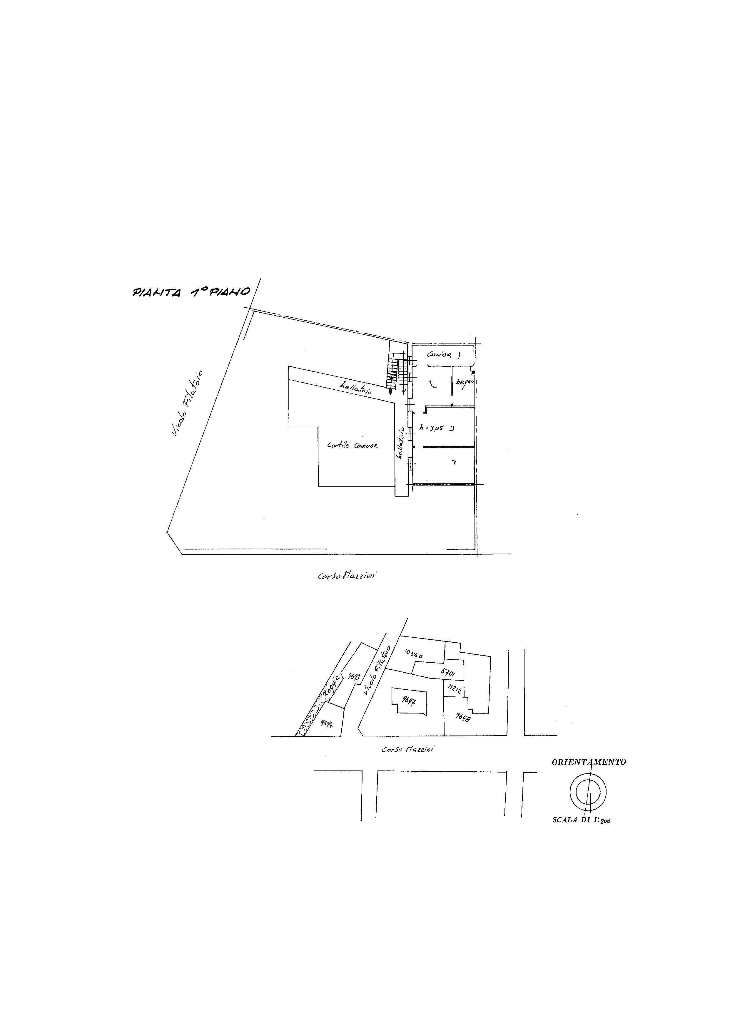
Ubicato sul corso Mazzini, l’appartamento è al 1° piano di palazzina ed è composto da ingresso su soggiorno/sala da pranzo, cucina semi abitabile, bagno e 2 camere da letto unite da corridoio. Balcone comune. Appartamento attualmente privo di impianto di riscaldamento, da ristrutturare.
Contattaci per visionare l’immobile
Indice di Prestazione Energetica: G – 195,77 kWh/m2a
Per info: Agenzia Immobiliare Desidera
Castelletto Sopra Ticino: 0331.973562
Sesto Calende: 0331.913264
Mob.: 348.8091809
Web: desidera.com
E-mail: info@desidera.com
Per una visita guidata/virtual tour ed altre informazioni visita l’immobile sul nostro sito internet
Property Features
- Da ristrutturare
Allegati
Cosa nelle vicinanze?
Ristoranti
- Locanda 86 (0.07 km)1 reviews
- Il Piccantino (1.97 km)1 reviews
- Pizzeria Centrale (0.08 km)2 reviews
Coffee Shops
- Caffe Fortina (0.22 km)0 reviews
- Botega Caffe Cacao (0.07 km)1 reviews
- Cafė de la Sera (6.55 km)1 reviews
Drogherie
- Notre (0.01 km)0 reviews
- 2G di Poggi Clara & C. Camping Eden (0.11 km)0 reviews
- Vicario / Luciano (0.19 km)0 reviews
Formazione scolastica
- International School OF Europe (37.19 km)0 reviews
- Lindbergh Flying School (39.57 km)0 reviews
- Franklin University (30.94 km)1 reviews
Clinica Veterinaria
Parco
- Villa Toeplitz (19.75 km)2 reviews
- Parco del Valentino (58.27 km)17 reviews
- Parco Sempione (38 km)61 reviews
Ospedali
- Milan Medical Center (37.52 km)5 reviews
- Valduce (31.2 km)1 reviews
- Ospedale Mauriziano (59.1 km)2 reviews







